Villa a schiera quadrilocale 209mq

Dati annuncio : Sale Villa a schiera, Cesena
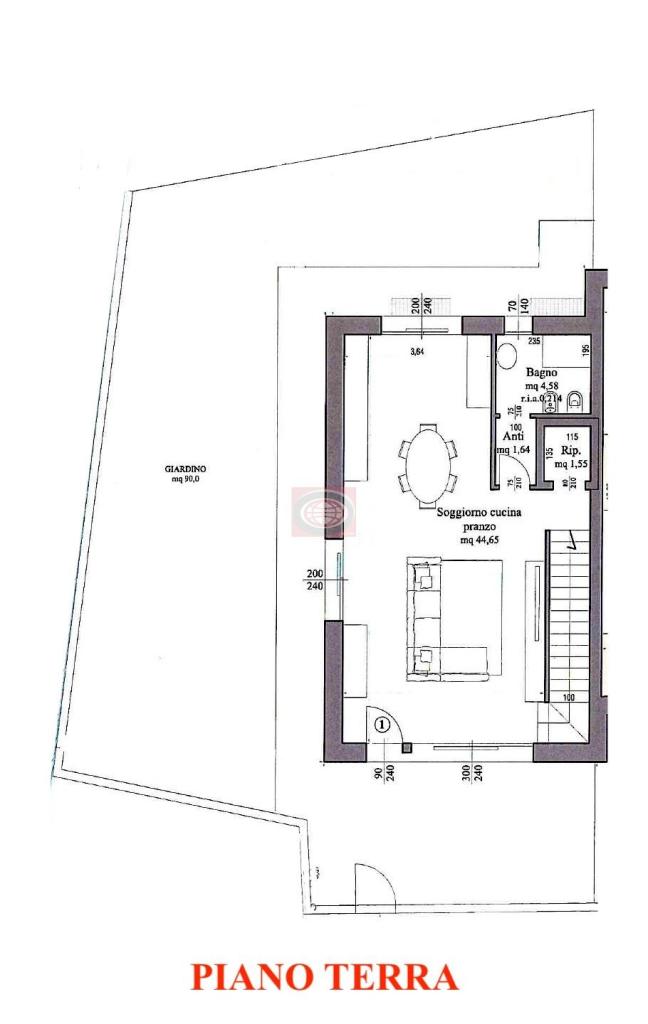
Cesena centro urbano (VSC512v1), proponiamo villette indipendenti di prossima costruzione a 500 metri dalle mura del centro storico. Villetta angolare così composta: PIANO TERRA ingresso in ampia e luminosa zona giorno di oltre 40 mq caratterizzata dalle vetrate che si affacciano sul giardino privato di 90mq, ripostiglio, antibagno, bagno; PIANO PRIMO disimpegno, camera padronale con bagno privato (mq 21,50), due camere, bagno, ripostiglio, due balconi; PIANO INTERRATO garage di 56 mq oltre a bagno lavanderia e ripostiglio. FINITURE costruite con metodologie ad alto risparmio energetico (CLASSE A) le villette sono tutte servite da riscaldamento a pavimento con pompa di calore, termostati ambientali, impianto fotovoltaico 4 Kw, infissi in PVC completi di zanzariere a scomparsa e tapparelle motorizzate, impianto di climatizzazione completo di macchinari, impianto VMC localizzata (ventilazione meccanica controllata), impianto anti-intrusione completo, impianto di aspirazione centralizzata, predisposizione per domotica e per batteria d´accumulo. CONSEGNA fine 2027/inizio 2028. N.B. le presenti informazioni non costituiscono elemento contrattuale.
- ProposalI offer
- ContractSale
- Price€610.000.00
- Rooms4
- Total square meters209
- Rooms3
- Bath2
- Balconies2
- KitchenAngolo cottura
- GardenPrivato
- HeatingA pavimento
- Property typeVilla a schiera
- ProvinceForli-cesena
- CommonCesena
- Date22-12-2025 06:19:23
- CodeEa-980ff0











