Laboratorio quadrilocale 193mq

Dati annuncio : Sale Laboratorio, Milano
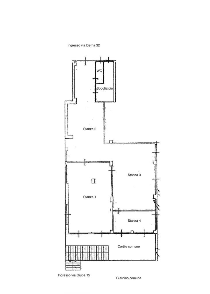
Laboratorio/Ufficio di 193 m² con doppi ingressi – Piano Seminterrato – Via Giuba 15 angolo Via Derna 32, Milano
Situato in una posizione strategica e servita di Milano, a breve distanza dalle fermate della metropolitana M1 (Pasteur) e M2 (Loreto), proponiamo in vendita un ampio laboratorio/ufficio di 198 m² al piano seminterrato, inserito in un contesto condominiale tranquillo e curato, con giardino.
L’immobile dispone di due ingressi indipendenti, ideali per distinguere l’accesso clienti da quello operativo:
Ingresso principale da Via Giuba 15, attraverso un piacevole giardino condominiale. Una scala con cancelletto conduce a un cortile comune e quindi all’immobile, attualmente composto da quattro ambienti funzionali, un bagno completo e un secondo locale utilizzabile come spogliatoio, secondo bagno o ripostiglio.
Secondo ingresso da Via Derna 32, situato sul retro, perfetto per carico e scarico o ingresso indipendente del personale.
Recentemente sono stati eseguiti diversi interventi di manutenzione: infissi sostituiti due anni fa, rifacimento del massetto e dei pavimenti, e rinnovamento dell’impianto elettrico, che garantisce maggiore efficienza e sicurezza.
La zona è circondata da aziende, studi professionali, coworking e servizi di ogni tipo, il che rende questa soluzione perfetta per attività artigianali, studi tecnici, agenzie, atelier o laboratori produttivi.
IMPORTANTE: Se per acquistare questa casa, devi o vuoi prima vendere la tua, fallo presente al consulente che ti seguirà, così potrà aiutarti anche in questo importante passo. “Meta Immobiliare - Professionisti fuori dal comune” offre una valutazione garantita con il valore di mercato e quello massimo realizzabile in tempi precisi. Il tutto senza margine di errore. Scopri di più su metaimmobiliare.com
Le indicazioni (e foto) riportate sono puramente indicative e non contrattualmente vincolanti, la presente scheda non ha valenza contrattuale e non impegna in alcun modo la presente società.
- ProposalI offer
- ContractSale
- Price€285.000.00
- Rooms4
- Total square meters193
- Bath2
- Property typeLaboratorio
- ProvinceMilano
- CommonMilano
- Date24-12-2025 06:28:50
- CodeEa-1d4eaf











