5 vani 215mq
₹268.000.00
0 Like it
0 Like it
Dati annuncio : Sale Pentavani, Monopoli
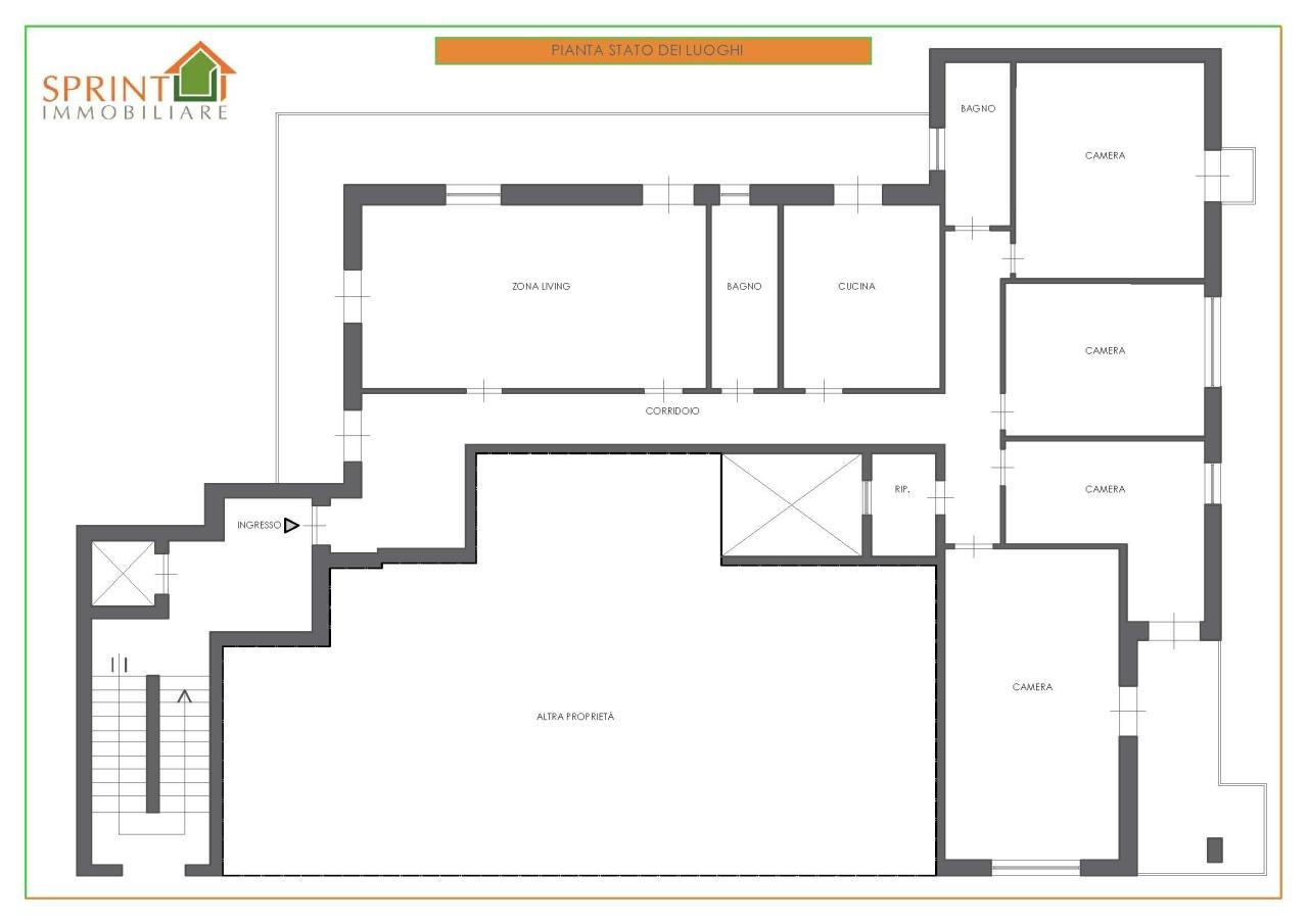
Monopoli-Semicentrale-poco distante da P.zza V. Emanuele e dalla zona storica della città. Vendesi appartamento di ampia metratura con possibilità di essere suddiviso in 2 unità immobiliari e composto da: Ingresso-Disimpegno, cucina abitabile, luminoso salone doppio-angolare, 5 spaziosi vani letto, due bagni e comodo ripostiglio a completare l´immobile abbiamo due balconi di mq 64 ca. complessivi. Tripla esposizione- ottimo rapporto qualità prezzo- da rimodernare. Prezzo ribassato da 290.000
- ProposalI offer
- ContractSale
- Price₹268.000.00
- Year1970
- Rooms5
- Number of floors1
- Sqm balconies64
- Total square meters215
- Rooms5
- Bath2
- Balconies2
- Energetic classVa
- Energy class (ipe)0.0
- LiftSi
- TerraceNo
- GardenNs
- CellarNo
- HeatingAutonomo
- Condominium fees25.0
- ProvinceBari
- CommonMonopoli
- Date19-12-2025 05:51:59
- CodeEa-1e801f







