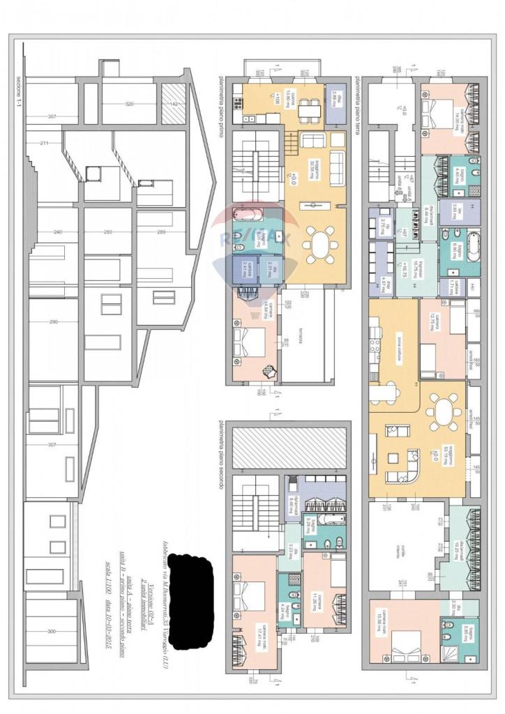
18 vani 369mq
Dati annuncio : Sale Homes, Viareggio
VIAREGGINA MICHELANGELO
CARATTERISTICHE
✅Piano terra 169 mq
✅Primo piano 93 mq
✅Secondo Piano 91 mq
✅Corte 20 mq
✅Dependance 31 mq
✅Terrazza 10 mq
COSA RENDE QUESTA CASA SPECIALE?
➡Posizione ottimale con servizi primari nelle vicinanze
➡Grandi spazi
➡Possibilità di personalizzare gli spazzi a proprio gusto e piacimento
➡ Corte di proprietà e dependance
➡A pochi passi dal mare e dalla pineta
➡Possibilità di realizzare il garage
La Viareggina Michelangelo si trova a 200 metri dal mare e dalla passeggiata in una delle zone più richiesta di Viareggio tra mare e pineta.
L´immobile al momento è adibito ad uso ufficio ma è consentito il cambio di destinazione d´uso in quanto in passato era una civile abitazione.
L´immobile si presta ad essere una signorile Villa Unifamiliare ma è possibile realizzare anche due appartamenti date le grandi dimensioni dello stabile.
Nel 2020 è stato rifatto il tetto, ristrutturate le facciate e i terrazzi.
Possibilità di realizzare il garage.
PRENOTA LA TUA VISITA!! Classe Energetica: G - IPE: 0.00kWh/mq anno
- ProposalI offer
- ContractSale
- Price€550.000.00
- Rooms18
- Plan13
- Total square meters369
- Bath6
- Energetic classG
- StateBuono
- LiftNo
- Construction typeResidenziale
- TerraceSi
- HeatingAutonomo
- FurnishingsNon arredato
- ProvinceLucca
- CommonViareggio
- Date27-11-2025 06:02:44
- CodeEa-2ddf29











